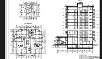
Обмерный чертеж является фундаментальным этапом в процессе проектирования, ремонта или реконструкции зданий и помещений. Это детальное изображение с точными размерами, которое служит основой для всех последующих строительных и отделочных работ.
Обмерный чертеж необходим по нескольким причинам:
- Планирование ремонта: точная база для разработки дизайн-проекта.
- Расчет материалов: определение необходимого количества строительных и отделочных материалов.
- Соблюдение стандартов: учет всех норм и требований при проектировании.
- Подготовка к продаже или аренде: предоставление точных данных о площади помещения.
- Историческая документация: сохранение данных о первоначальной планировке и конструкции зданий.
Процесс создания обмерного чертежа включает в себя несколько ключевых этапов:
- Измерение помещений: использование измерительных инструментов для получения точных размеров.
- Отображение конструктивных элементов: стены, окна, двери, ниши и другие важные детали.
- Обозначение инженерных коммуникаций: расположение электропроводки, водопровода, отопления.
- Перенос данных на бумагу или в специализированные программы для создания цифровых чертежей.
Стоимость создания обмерного чертежа зависит от ряда факторов:
- Размер и сложность помещения: большие или сложные по конфигурации помещения требуют больше времени на обмер.
- Точность требуемых данных: чем выше требования к точности, тем сложнее процесс измерения.
- Использование специального оборудования: лазерные дальномеры, 3D-сканеры увеличивают стоимость, но повышают точность.
- Квалификация специалиста: опыт и профессионализм исполнителя влияют на качество и стоимость работы.
- Регион выполнения работы: в разных географических регионах цены на подобные услуги могут отличаться.
Обмерный чертеж - важный инструмент в строительстве и дизайне, который помогает достичь точности в планировании и исполнении работ. Он обеспечивает ясность и понимание реальных размеров помещения, что является ключевым для успешной реализации любого проекта. Важность этого этапа трудно переоценить, так как он лежит в основе всех последующих действий при работе с пространством.











































































